Actium Mile Vicálvaro
Vicálvaro, Madrid
349.6 - 7,245.3 m²
Precio alquiler -
7,50 € / m² / mes
Disponibilidad - Q4 - 2026
Contactar
Descripción
ACTIUM MILE, un nuevo proyecto logístico ubicado en el corazón del desarrollo de El Cañaveral, uno de los polos industriales con mayor proyección del este de Madrid. Este enclave combina ubicación estratégica, modernas infraestructuras y acceso directo a las principales vías de comunicación: M-45, M-50, R-3 y futura conexión con M-40.
Con una excelente conexión al centro de Madrid (a solo 18 km) y al aeropuerto de Barajas (10 km), esta plataforma representa una oportunidad única para empresas que buscan eficiencia logística, proximidad urbana y proyección a largo plazo.
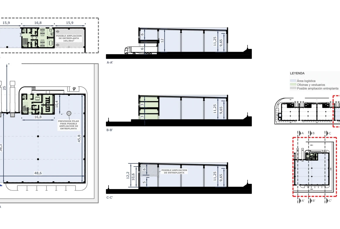
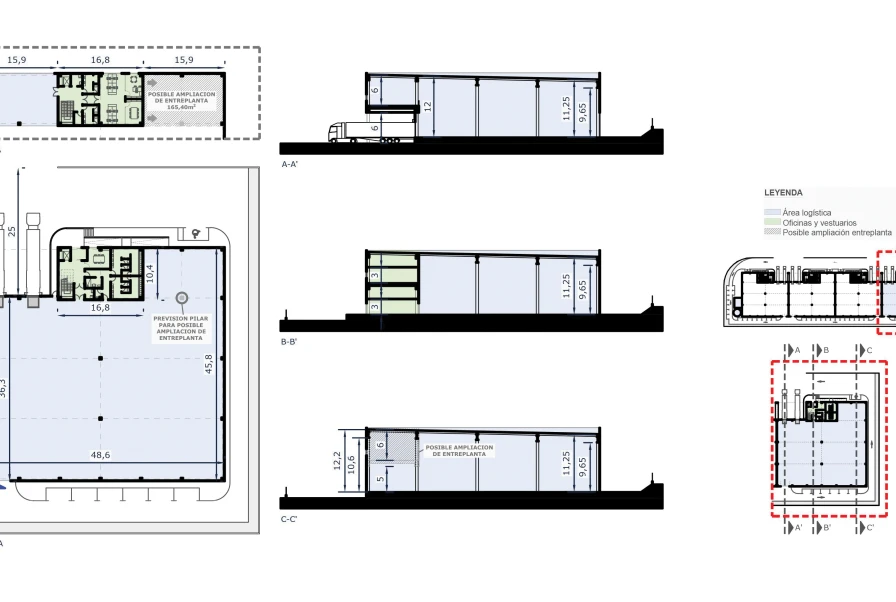
- Altura libre: 12,20 metros
- 15 muelles de carga y 6 rampas
- Playa de maniobras de 25 metros
- Oficinas integradas y 41 plazas de aparcamiento
- Sistema contraincendios: PCI Riesgo Medio 5 – Tipo B
Con una excelente conexión al centro de Madrid (a solo 18 km) y al aeropuerto de Barajas (10 km), esta plataforma representa una oportunidad única para empresas que buscan eficiencia logística, proximidad urbana y proyección a largo plazo.
- Altura libre: 12,20 metros
- 15 muelles de carga y 6 rampas
- Playa de maniobras de 25 metros
- Oficinas integradas y 41 plazas de aparcamiento
- Sistema contraincendios: PCI Riesgo Medio 5 – Tipo B
Ref. MAD-IND-01630
Características
Instalación Nave
- Oficinas
- prueba
- Solera de hormigón
- Red contraincendios
- Agua
- Vestuarios
- Detector de humos
- Salidas emergencia
- Iluminación LED
- Muelle de carga
- Exutorios (SCTEH)
Instalación Oficina
- Red Contra Incendios
- Aseos
- Despachos
Otros
- Nave Diáfana
- Buenos accesos
- Parking
- Buenas comunicaciones
Construcción
- Hormigón Prefabricado
Edificación
- Playa de maniobras
- Estructura de hormigón
- Zona de maniobras
- Entrada trailer
- Edificación aislada
- Parcela vallada
- Entrada camión
- Acometida luz
- Acometida agua
- Muelles de carga
Cubierta
- Sándwich
Urbanización
- P.I. Urbanizado
Comunicaciones
- Carretera: M-45, M-50, R-3 y futura conexión M-40
- Madrid Centro: 18 km
- Aeropuerto Madrid-Barajas: 10km
Superfície disponible
Nave 1
ALQUILER
7,50 € / m² / mes
SUPERFICIE 2,415.1 m²
DISPONIBILIDAD Q4 - 2026
Nave 2
ALQUILER
7,50 € / m² / mes
SUPERFICIE 2,415.1 m²
DISPONIBILIDAD Q4 - 2026
Nave 3
ALQUILER
7,50 € / m² / mes
SUPERFICIE 2,065.5 m²
DISPONIBILIDAD Q4 - 2026
Nave 4
ALQUILER
7,50 € / m² / mes
SUPERFICIE 349.6 m²
DISPONIBILIDAD Q4 - 2026