Cabanillas del Campo Core Park
Cabanillas del Campo, Madrid Norte
16,596.06 - 36,057.5 m²
Precio alquiler -
4,15 € / m² / mes
Disponibilidad - Por determinar
Contactar
Descripción
Proyecto logístico de última generación situado en Cabanillas del Campo, provincia de Guadalajara.
Situado en la Tercera Corona logística del eje más demandado del centro peninsular (Corredor del Henares), el Proyecto goza de una ubicación estratégica, en un enclave logístico altamente consolidado, que ha demostrado su eficiencia tanto para la distribución nacional, como regional.
A tan sólo 48 km de Madrid y a 41 del aeropuerto internacional de Madrid Adolfo Suárez, Core Cabanillas Park cuenta con excelentes accesos a la A-2 en ambos sentidos
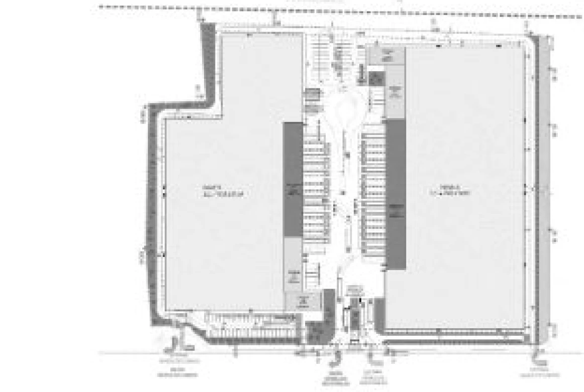
Características:
-Playa de maniobra de 55 m
-Altura libre de 11,50 m
-Solera de hormigón con sobrecarga de 7 Tn/m² 33
-Muelles de carga (18 Nave A y 15 Nave B)
-8 Rampas de Acceso (4+4)
-Instalación fotovoltaica en cubierta
-Oficinas totalmente acondicionadas con climatización y aseos
-Certificación BREEAM VeryGood
-106 Plazas de parking
Situado en la Tercera Corona logística del eje más demandado del centro peninsular (Corredor del Henares), el Proyecto goza de una ubicación estratégica, en un enclave logístico altamente consolidado, que ha demostrado su eficiencia tanto para la distribución nacional, como regional.
A tan sólo 48 km de Madrid y a 41 del aeropuerto internacional de Madrid Adolfo Suárez, Core Cabanillas Park cuenta con excelentes accesos a la A-2 en ambos sentidos
Características:
-Playa de maniobra de 55 m
-Altura libre de 11,50 m
-Solera de hormigón con sobrecarga de 7 Tn/m² 33
-Muelles de carga (18 Nave A y 15 Nave B)
-8 Rampas de Acceso (4+4)
-Instalación fotovoltaica en cubierta
-Oficinas totalmente acondicionadas con climatización y aseos
-Certificación BREEAM VeryGood
-106 Plazas de parking
Ref. MAD-IND-01382
Comunicaciones
- Madrid centro: 48 km
- Aeropuerto de Barajas: 41 km
Superfície disponible
Nave 1
ALQUILER
4,15 € / m² / mes
SUPERFICIE 16,596.06 m²
DISPONIBILIDAD Por determinar
Nave 2
ALQUILER
4,15 € / m² / mes
SUPERFICIE 19,461.44 m²
DISPONIBILIDAD Por determinar