NAVE LOGISTICA ABRERA
Abrera, Barcelona
2,608 m²
Precio alquiler -
6,00 € / m² / mes
Disponibilidad - Inmediata
Contactar
Descripción
Nave Logistica AISLADA tipo C, de reciente construcción. Disponibilidad 1Q-2023
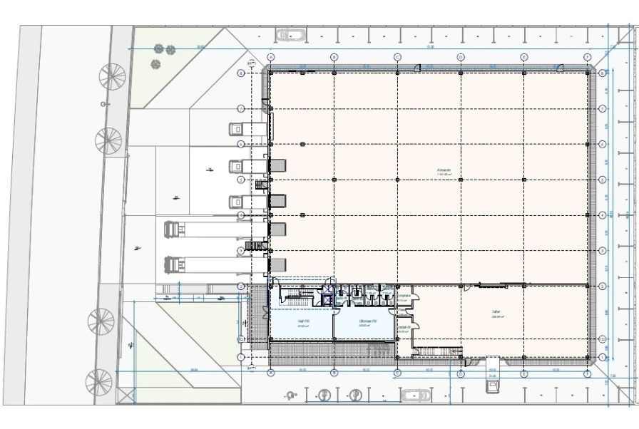
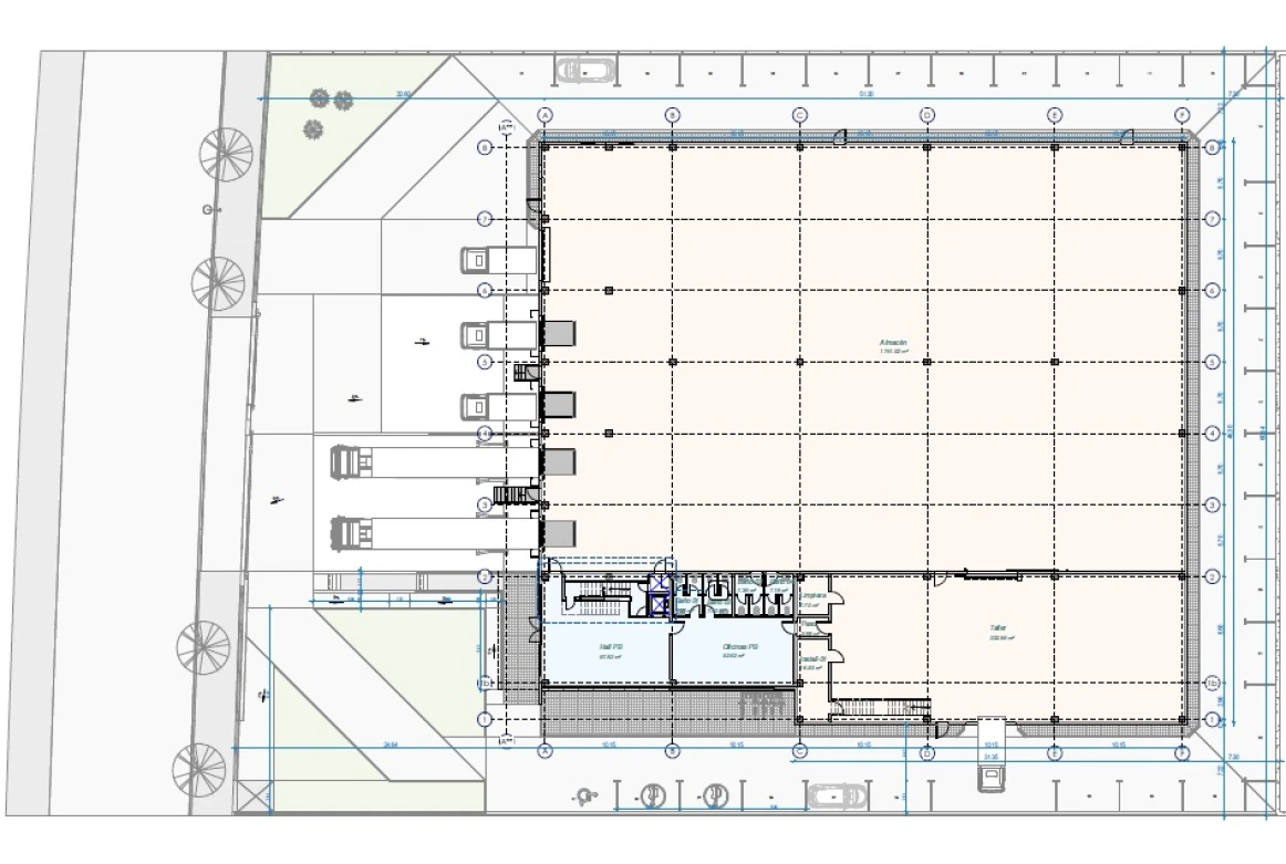
Nave con muelles de carga y patio para carga y descarga
Edificio de oficinas anexo con terraza practicable.
RENTA: 14.340 €/mes
IBI a cargo del Arrendatario
Nave con muelles de carga y patio para carga y descarga
Edificio de oficinas anexo con terraza practicable.
RENTA: 14.340 €/mes
IBI a cargo del Arrendatario
Ref. BCN-IND-01111
Características
Instalación Nave
- Oficinas
- Mangueras
- Red contraincendios
- Agua
- Vestuarios
Instalación Oficina
- Red Contra Incendios
- Falso Techo
- Aseos
- Entrada Independiente
- Aire Acondicionado Frío/Calor
Otros
- Nave Diáfana
- Buenos accesos
- Buenas comunicaciones
- Fachada representativa
Construcción
- Hormigón Prefabricado
Edificación
- Patios
- Playa de maniobras
- Estructura de hormigón
- Rampa
- Cortafuegos
- Luz cenital
- Patio delantero
- Muelles de carga
Cubierta
- Sándwich
Urbanización
- P.I. Urbanizado
Comunicaciones
- AEROPUERTO
- Autopista: AP_7
- Autovía: A-2
Superfície disponible
Nave 1
ALQUILER
6,00 € / m² / mes
SUPERFICIE 2,608 m²
DISPONIBILIDAD Inmediata