Nave Logística en Alquiler Coslada de 4.580 m²
Coslada, Madrid Norte
4,580 m²
Precio alquiler -
6,25 € / m² / mes
Disponibilidad - Inmediata
Contactar
Descripción
El polígono goza de excelentes comunicaciones por su ubicación entre las principales vías A-2, M-21 y M-40 y M-50, y la proximidad al Aeropuerto Internacional Madrid-Barajas (7,2 km) por la M-14, así como tren de cercanías (San Fernando de Henares)
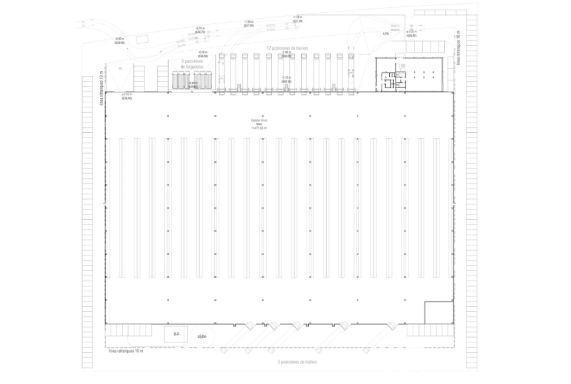
La nave logística se situada en el Centro de Transportes de Coslada (CTC), Coslada (Madrid), en la calle Rumanía nº7, a 2km escasos (5 min en coche) del PUERTO SECO de Madrid ubicado en Coslada.
Nave exenta tipo “C” en parcela independiente en esquina de c/Rumanía con c/Austria.
Cuenta con unas superficies:
Superficie parcela de 7.292 m2
Superficie total construida 4.580 m2
Distribuidos en Nave de 4.005 m2
Vestuarios, Servicios y dependencias auxiliares de nave de 115 m2
Oficinas en primera planta de 460 m2
Especificaciones técnicas:
El inmueble cuenta con entrada independiente de oficinas muy representativa
6 muelles de carga para tráiler
12 metros de altura libre en almacén
Vial perimetral de 7m de ancho con amplios espacios de aparcamiento y parking cubierto exterior, entre otras características.
Certificación BREEAM GOOD para edificios en uso
La nave logística se situada en el Centro de Transportes de Coslada (CTC), Coslada (Madrid), en la calle Rumanía nº7, a 2km escasos (5 min en coche) del PUERTO SECO de Madrid ubicado en Coslada.
Nave exenta tipo “C” en parcela independiente en esquina de c/Rumanía con c/Austria.
Cuenta con unas superficies:
Superficie parcela de 7.292 m2
Superficie total construida 4.580 m2
Distribuidos en Nave de 4.005 m2
Vestuarios, Servicios y dependencias auxiliares de nave de 115 m2
Oficinas en primera planta de 460 m2
Especificaciones técnicas:
El inmueble cuenta con entrada independiente de oficinas muy representativa
6 muelles de carga para tráiler
12 metros de altura libre en almacén
Vial perimetral de 7m de ancho con amplios espacios de aparcamiento y parking cubierto exterior, entre otras características.
Certificación BREEAM GOOD para edificios en uso
Ref. MAD-IND-01230
Características
Instalación Nave
- Enchufes
- Agua
- Vestuarios
- Muelle de carga
Comunicaciones
- A-2
- Salida 15
- Salida 16
- M-40
Superfície disponible
Nave 1
ALQUILER
6,25 € / m² / mes
SUPERFICIE 4,580 m²
DISPONIBILIDAD Inmediata