Nave Logística Leganés
Leganés, Madrid Sur
16,314.1 m²
Precio alquiler -
5,35 € / m² / mes
Disponibilidad - Inmediata
Contactar
Descripción
Se encuentra situado en el Polígono Industrial Nuestra Señora de Butarque, en el municipio de Leganés, dentro del primer anillo del eje sur del mercado logístico madrileño.
Está bien comunicado con la A-42 y la M-45, con un acceso privilegiado para las actividades de distribución a Madrid y a los municipios del sur.
Ubicación estratégica, con conexiones directas con Madrid (a 25 minutos del centro de la ciudad) y el eje sur para la distribución nacional.
Ubicado dentro de un área consolidada, con excelente conectividad por transporte público lo que lo convierte en un espacio ideal para responder a la creciente
demanda de logística de comercio electrónico.
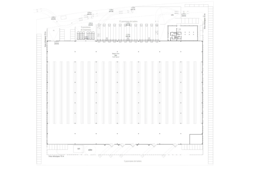
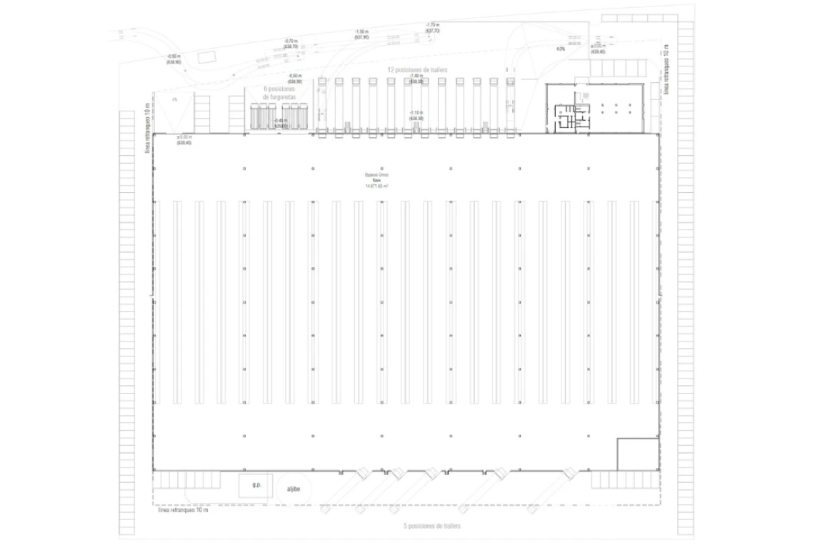
Superficie construida 16.314 m²
Especificaciones Técnicas:
*SOLERA Con juntas cada 6m x 6 m
*CALIFICACIÓN DE RIESGO Riesgo Medio -Grado 5 ( TIPO C)
*12 MUELLES
*11.2 m altura libre
*6 RAMPAS DE FURGONETAS
*1,200 m² OFICINAS
*BREEAM Excellent Zonas verdes
*Instalación fotovoltáica
*Rociadores ESFR K25 BIES DN 25mm
Está bien comunicado con la A-42 y la M-45, con un acceso privilegiado para las actividades de distribución a Madrid y a los municipios del sur.
Ubicación estratégica, con conexiones directas con Madrid (a 25 minutos del centro de la ciudad) y el eje sur para la distribución nacional.
Ubicado dentro de un área consolidada, con excelente conectividad por transporte público lo que lo convierte en un espacio ideal para responder a la creciente
demanda de logística de comercio electrónico.
Superficie construida 16.314 m²
Especificaciones Técnicas:
*SOLERA Con juntas cada 6m x 6 m
*CALIFICACIÓN DE RIESGO Riesgo Medio -Grado 5 ( TIPO C)
*12 MUELLES
*11.2 m altura libre
*6 RAMPAS DE FURGONETAS
*1,200 m² OFICINAS
*BREEAM Excellent Zonas verdes
*Instalación fotovoltáica
*Rociadores ESFR K25 BIES DN 25mm
Ref. MAD-IND-01224
Características
Instalación Nave
- Enchufes
- Oficinas
- prueba
- Agua
Edificación
- Cortafuegos
- Luz
- Muelles de carga
Otros
- Certificación BREAM
Comunicaciones
- Madrid: 15 km
- A-42: 3 km
- M-45: 2 km
Superfície disponible
Nave 1
ALQUILER
5,35 € / m² / mes
SUPERFICIE 16,314.1 m²
DISPONIBILIDAD Inmediata